Immobilien

Zu vermieten ab sofort in Buchs SG
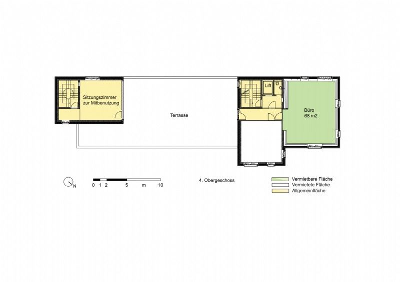
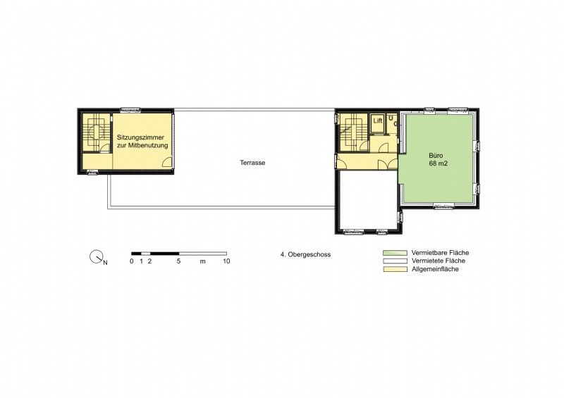
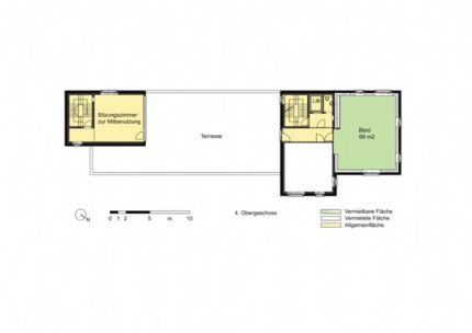
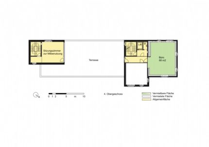
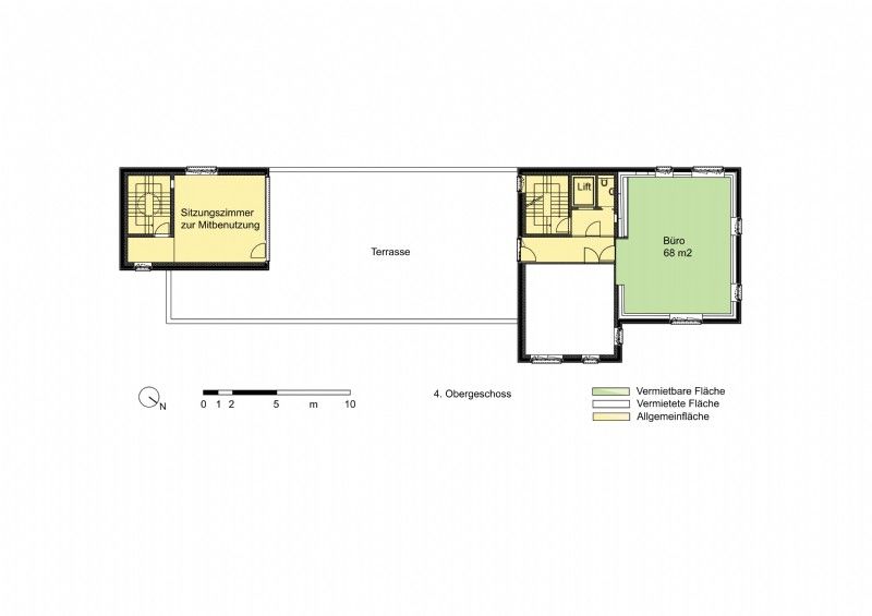
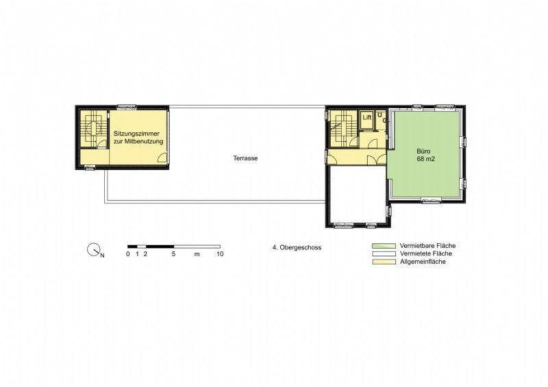
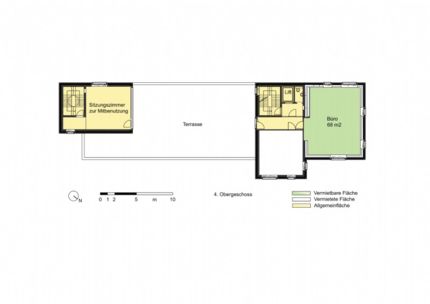
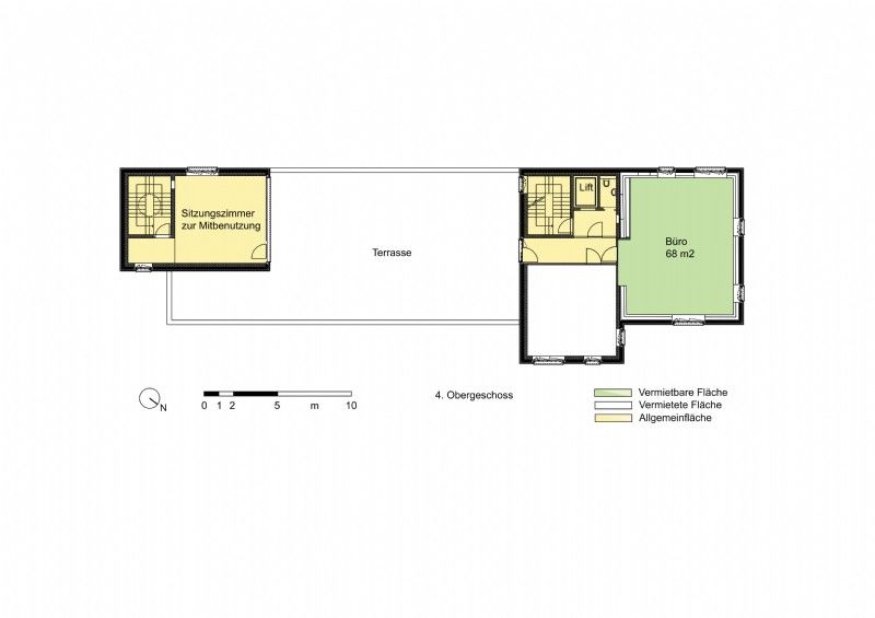
Arbeiten mit Weitsicht - Ebene 4

Fichtenweg 10, 9470 Buchs SG
68 m2
ab sofort
Preise pro Monat
CHF 1'400.00
CHF 1'200.00
CHF 200.00
CHF 50.00
Beschreibung
An verkehrsgünstiger Lage in der Nähe des Bahnhofs vermieten wir im vollständig erneuerten Bürogebäude "Futtermühle" in Buchs diverse Büroflächen. Das Haus bietet mit dem 35 m hohen Turm attraktive und nicht alltägliche Büroräume.Räumlichkeiten zur Mitbenutzung (unentgeltlich):- grosszügiges und bereits möbiliertes Besprechungszimmer- Pausen-/Aufenthaltsraum mit Küche im obersten StockwerkAussenabstellplätze vor dem Gebäude sind vorhanden, welche zu CHF 50.00 pro Parkplatz und Monat dazugemietet werden können.Bezugstermin ab sofort oder nach Vereinbarung möglich.

Besichtigungskontakt

Egger Daniel
T +423 388 03 29
daniel.egger(at)itw.li

ITW 
Ingenieurunternehmung AG

 

Alte Landstrasse 3
9496 Balzers
Liechtenstein

 

T +423 388 03 03
F +423 388 03 00
itw(at)itw.li

Kontaktaufnahme

Das Formular ist gegen das automatische Ausfüllen von Bots abgesichert. Wenn Sie denken, dass das Formular nicht wie erwartet funktioniert, wenden Sie sich bitte an den Website Inhaber.
Nächstes Angebot
WEITERE
IMMOBILIEN